
1561 Stratus Drive Pomona, CA 91768
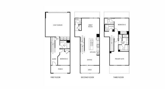
3 Beds
3.5 Baths
1,791 SqFt
UPDATED:
Key Details
Property Type Condo
Sub Type Condominium
Listing Status Active
Purchase Type For Sale
Square Footage 1,791 sqft
Price per Sqft $401
MLS Listing ID CROC25183408
Bedrooms 3
Full Baths 3
Half Baths 1
HOA Fees $244/mo
HOA Y/N Yes
Year Built 2025
Property Sub-Type Condominium
Property Description
Location
State CA
County Los Angeles
Zoning RES
Interior
Interior Features Pantry
Cooling Central Air, Other, ENERGY STAR Qualified Equipment
Flooring Vinyl
Fireplaces Type None
Fireplace No
Appliance Dishwasher, Gas Range, Microwave
Laundry Gas Dryer Hookup
Exterior
Garage Spaces 2.0
View Y/N true
View Other
Total Parking Spaces 2
Private Pool false
Building
Lot Description Landscaped, Street Light(s)
Level or Stories Three or More Stories
New Construction No
Schools
School District Pomona Unified







